Neues in Zermatt/​Breuil-Cervinia/​Valtournenche – Matterhorn
- Cervin
- Vogelsberg (520m)
- Beiträge: 541
- Registriert: 24.08.2017 - 13:04
- Skitage 25/26: 0
- Ski: ja
- Snowboard: nein
- Ort: Zermatt
- Hat sich bedankt: 224 Mal
- Danksagung erhalten: 458 Mal
- Kontaktdaten:
Re: Neues in Zermatt/​Breuil-Cervinia/​Valtournenche – Matterhorn
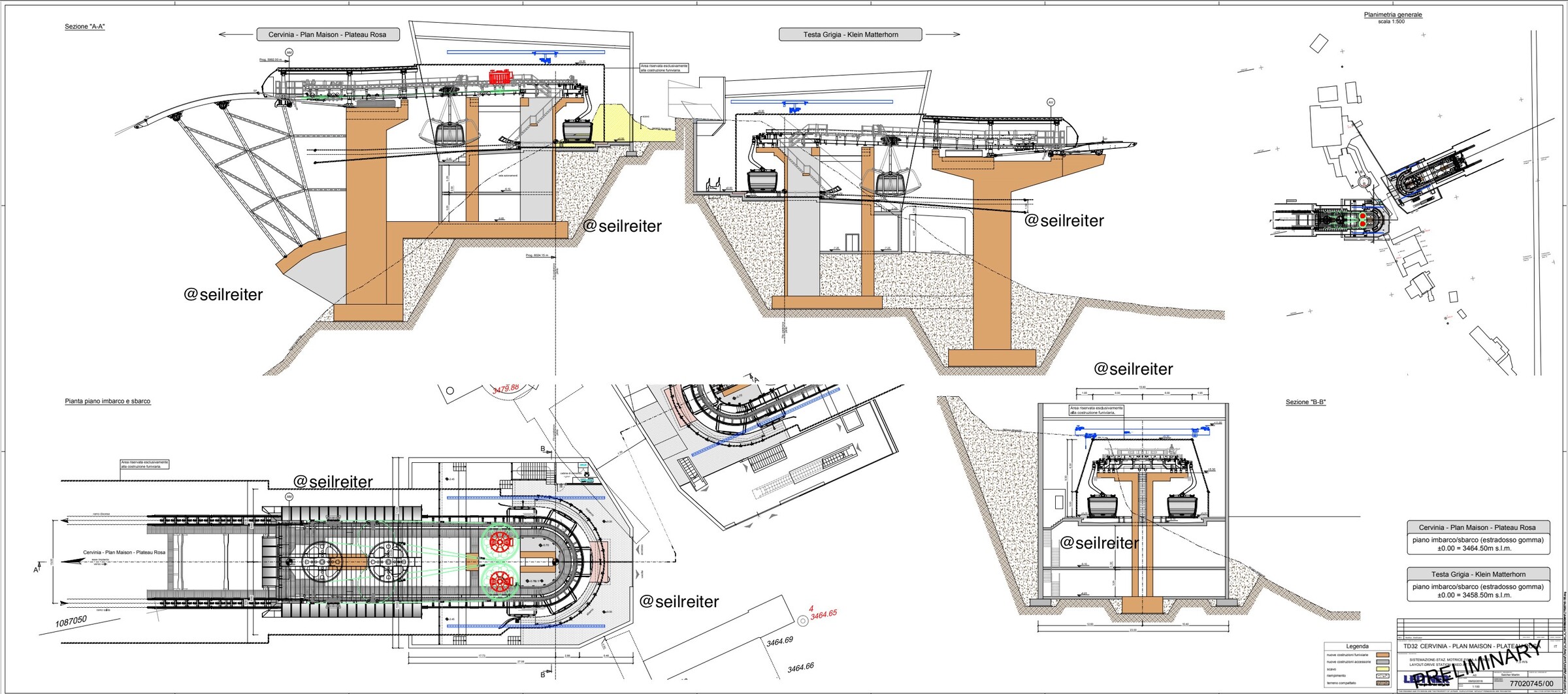
Die Bergstation kommt direkt hinter dier bestehende 3s. gleich ausstiegshöhe wie die pendelbahn.
the zermatt boy
https://www.instagram.com/nilsgygax/
https://www.instagram.com/nilsgygax/
- phifue
- Brocken (1142m)
- Beiträge: 1152
- Registriert: 25.09.2022 - 22:34
- Skitage 25/26: 12
- Ski: ja
- Snowboard: nein
- Hat sich bedankt: 58 Mal
- Danksagung erhalten: 483 Mal
Re: Neues in Zermatt/​Breuil-Cervinia/​Valtournenche – Matterhorn
Warum baut man den Ausstieg nicht auf der gleichen Höhe wie bei der anderen 3S?Cervin hat geschrieben: 30.05.2024 - 13:24 Die Bergstation kommt direkt hinter dier bestehende 3s. gleich ausstiegshöhe wie die pendelbahn.
IMG_1702.jpeg
- CV
- Gaislachkogl (3058m)
- Beiträge: 3132
- Registriert: 19.01.2005 - 00:19
- Skitage 25/26: 0
- Ski: ja
- Snowboard: nein
- Ort: Canazei / Karlsruhe
- Hat sich bedankt: 0
- Danksagung erhalten: 595 Mal
Re: Neues in Zermatt/​Breuil-Cervinia/​Valtournenche – Matterhorn
das wäre ein massiver Eingriff in den Berg auf italienischer Seite. Zumal stehen die Gebäude außenrum eher auf PB-Niveau.
Endless days of summer, longer nights of gloom, Waiting for the morning light
Scenes of unimportance, photos in a frame, Things that go to make up a life
As we relive our lives in what we tell you; Let us relive our lives in what we tell you
Scenes of unimportance, photos in a frame, Things that go to make up a life
As we relive our lives in what we tell you; Let us relive our lives in what we tell you
↓ Mehr anzeigen... ↓
- intermezzo
- Wildspitze (3774m)
- Beiträge: 3953
- Registriert: 08.08.2006 - 14:32
- Skitage 25/26: 0
- Ski: ja
- Snowboard: nein
- Ort: Ferrania presso Basilea
- Hat sich bedankt: 477 Mal
- Danksagung erhalten: 2007 Mal
Re: Neues in Zermatt/​Breuil-Cervinia/​Valtournenche – Matterhorn
Massiv: ja. Wäre aber, berücksichtigt man die Historie, passend und wäre eigentlich nur konsequent (sprich inhomogenes Baugewusel aus verschiedenen Jahrzehnten).CV hat geschrieben: 30.05.2024 - 14:19 das wäre ein massiver Eingriff in den Berg auf italienischer Seite. Zumal stehen die Gebäude außenrum eher auf PB-Niveau.
- Snow Wally
- Wurmberg (971m)
- Beiträge: 1081
- Registriert: 24.09.2014 - 22:13
- Skitage 25/26: 0
- Ski: ja
- Snowboard: ja
- Hat sich bedankt: 1884 Mal
- Danksagung erhalten: 551 Mal
Re: Neues in Zermatt/​Breuil-Cervinia/​Valtournenche – Matterhorn
Merci für den Plan, Cervin! Schon eine schöne Vorstellung mit so vielen komfortablen 3S Bahnen in Z-C ab 2028 oder so. 
Freut mich, dass man bei der Planung schon so weit fortgeschritten ist. Scheinbar hat die Cervinia SPA trotz tieferen TK-Preisen auch nach Corona gut verdient (oder seit dem neuen Pancheron in ~2009 gut gespart), dass sie jetzt so massiv investieren kann.
Und für Leitner war ist's natürlich auch eine schöne Sache, wenn man nach der ersten 3S in Z vermutlich quasi ohne Konkurrenz noch solche 3 zusätzliche Grossaufträge bekommt.
(fehlt nur noch eine 5. 3S von Zermatt via Furi nach Trockener Steg, dann wäre die Erschliessung perfekt... ok, Utopie OFF)
Back to TG: Könnte aber allenfalls etwas eng werden dort oben und mit der schmalen Piste runter neben dem Förderband...
Freut mich, dass man bei der Planung schon so weit fortgeschritten ist. Scheinbar hat die Cervinia SPA trotz tieferen TK-Preisen auch nach Corona gut verdient (oder seit dem neuen Pancheron in ~2009 gut gespart), dass sie jetzt so massiv investieren kann.
Und für Leitner war ist's natürlich auch eine schöne Sache, wenn man nach der ersten 3S in Z vermutlich quasi ohne Konkurrenz noch solche 3 zusätzliche Grossaufträge bekommt.
(fehlt nur noch eine 5. 3S von Zermatt via Furi nach Trockener Steg, dann wäre die Erschliessung perfekt... ok, Utopie OFF)
Back to TG: Könnte aber allenfalls etwas eng werden dort oben und mit der schmalen Piste runter neben dem Förderband...
- Cervin
- Vogelsberg (520m)
- Beiträge: 541
- Registriert: 24.08.2017 - 13:04
- Skitage 25/26: 0
- Ski: ja
- Snowboard: nein
- Ort: Zermatt
- Hat sich bedankt: 224 Mal
- Danksagung erhalten: 458 Mal
- Kontaktdaten:
Re: Neues in Zermatt/​Breuil-Cervinia/​Valtournenche – Matterhorn
für leitner wirds noch einige schöne sachen geben :) auf beiden seiten der grenze...
the zermatt boy
https://www.instagram.com/nilsgygax/
https://www.instagram.com/nilsgygax/
-
Romand
- Massada (5m)
- Beiträge: 52
- Registriert: 17.03.2015 - 23:34
- Skitage 25/26: 0
- Ski: ja
- Snowboard: nein
- Hat sich bedankt: 127 Mal
- Danksagung erhalten: 18 Mal
Re: Neues in Zermatt/​Breuil-Cervinia/​Valtournenche – Matterhorn
das wird aber teuer....
Cervin hat geschrieben: 30.05.2024 - 19:09 für leitner wirds noch einige schöne sachen gebenauf beiden seiten der grenze...
- Cervin
- Vogelsberg (520m)
- Beiträge: 541
- Registriert: 24.08.2017 - 13:04
- Skitage 25/26: 0
- Ski: ja
- Snowboard: nein
- Ort: Zermatt
- Hat sich bedankt: 224 Mal
- Danksagung erhalten: 458 Mal
- Kontaktdaten:
Re: Neues in Zermatt/​Breuil-Cervinia/​Valtournenche – Matterhorn
ich sprach aber nicjt von denen sachen die du auf deiner karte hats. eine sesselbahn rosenrotz wirds so schnell nicht geben, braucht auch niemand. es gibt ja schon die hohtälli bahn???
beca d‘aran ist noch nicht so alt, die bahn aus vt auch nicht
the zermatt boy
https://www.instagram.com/nilsgygax/
https://www.instagram.com/nilsgygax/
-
Romand
- Massada (5m)
- Beiträge: 52
- Registriert: 17.03.2015 - 23:34
- Skitage 25/26: 0
- Ski: ja
- Snowboard: nein
- Hat sich bedankt: 127 Mal
- Danksagung erhalten: 18 Mal
Re: Neues in Zermatt/​Breuil-Cervinia/​Valtournenche – Matterhorn
nur träumenCervin hat geschrieben: 31.05.2024 - 07:21ich sprach aber nicjt von denen sachen die du auf deiner karte hats. eine sesselbahn rosenrotz wirds so schnell nicht geben, braucht auch niemand. es gibt ja schon die hohtälli bahn???
beca d‘aran ist noch nicht so alt, die bahn aus vt auch nicht
Bec d'aran (1988?) ist viel zu kurz. So kénnte man von Salette direkt zum Bec Carré und den Motta Schneck vergessen. VT - Salette (sieht aber alter aus als 1997
- Cervin
- Vogelsberg (520m)
- Beiträge: 541
- Registriert: 24.08.2017 - 13:04
- Skitage 25/26: 0
- Ski: ja
- Snowboard: nein
- Ort: Zermatt
- Hat sich bedankt: 224 Mal
- Danksagung erhalten: 458 Mal
- Kontaktdaten:
Re: Neues in Zermatt/​Breuil-Cervinia/​Valtournenche – Matterhorn
Vielleicht gibt es ja mal neue Kabinen.
Sobald die EUB aus St-Jaques kommt, wird die die Gran Sometta Sesselbahn durch eine Gondelbahn ersetzt. Die kommt dann runter als neue Motta. Das erklärt auch ihre modulare Bauweise mit der Leichtbauhalle.
Sobald die EUB aus St-Jaques kommt, wird die die Gran Sometta Sesselbahn durch eine Gondelbahn ersetzt. Die kommt dann runter als neue Motta. Das erklärt auch ihre modulare Bauweise mit der Leichtbauhalle.
the zermatt boy
https://www.instagram.com/nilsgygax/
https://www.instagram.com/nilsgygax/
-
Onlinej-d-s
- Mt. Blanc (4807m)
- Beiträge: 5065
- Registriert: 01.12.2010 - 13:11
- Skitage 25/26: 0
- Ski: ja
- Snowboard: nein
- Hat sich bedankt: 95 Mal
- Danksagung erhalten: 736 Mal
Re: Neues in Zermatt/​Breuil-Cervinia/​Valtournenche – Matterhorn
In Bezug auf die Cervinia-3S-Bahnen bezweifle ich stark, dass das schnell gehen wird. Und wenn, wird es die Verbindung mit Frachey um mindestens 5, eher 10 Jahre nach hinten schieben. Da wärs besser, man lässt es wie es ist oder ersetzt allenfalls Cervinia-Plan Maison-Cime Bianchi Laghe durch eine 10EUB.
In Zermatt dagegen sind die Projekte sehr sinnvoll (und die ZBAG hat auch genug Geld): Breitboden-Gornergrat (wohl eher etwas darunter?) ist eine prima Alternative zur PB Gant-Hohtälli, um vom Rothorn-Gebiet ins Gornergrat-Gebiet zu kommen (die GGB ginge auch, ist aber sehr langsam). Auch Furgg-unterhalb Furggsattel ist eine tolle Neuerung, vor allem wenn man die Piste 55 mal wieder in Betrieb nehmen würde, sodass man von der KSB Hirli direkt dorthin käme.
In Zermatt dagegen sind die Projekte sehr sinnvoll (und die ZBAG hat auch genug Geld): Breitboden-Gornergrat (wohl eher etwas darunter?) ist eine prima Alternative zur PB Gant-Hohtälli, um vom Rothorn-Gebiet ins Gornergrat-Gebiet zu kommen (die GGB ginge auch, ist aber sehr langsam). Auch Furgg-unterhalb Furggsattel ist eine tolle Neuerung, vor allem wenn man die Piste 55 mal wieder in Betrieb nehmen würde, sodass man von der KSB Hirli direkt dorthin käme.
- Fab
- Disteghil Sar (7885m)
- Beiträge: 7947
- Registriert: 28.07.2007 - 13:11
- Skitage 25/26: 0
- Ski: ja
- Snowboard: nein
- Ort: Tauperlitz (Bayern)
- Hat sich bedankt: 34 Mal
- Danksagung erhalten: 687 Mal
Re: Neues in Zermatt/​Breuil-Cervinia/​Valtournenche – Matterhorn
Aktuelle Planung oder wünsch dir was?
Von der Rosuritz-Bahn vom Breitboden rauf wird schon ewig rumfantasiert.
Interessant find ich die eingezeichnete Bahn ganz rechts in Valtournenche. Da gabs schon mal nen ultralangsamen Sessel. Das würde die
Piste 1 besser für Wiederholungsfahrten ereichbar machen.
Was da eingezeichnet ist, ist schlicht der geplante Gartensessel. Die Bergstation ist auch nicht "unterhalb Furggsattel", sondern der Bereich an dem der weggerissene Gartentellerlift endete. Von da konnte man zum "Sandigen Boden wechseln"
Von der Rosuritz-Bahn vom Breitboden rauf wird schon ewig rumfantasiert.
Interessant find ich die eingezeichnete Bahn ganz rechts in Valtournenche. Da gabs schon mal nen ultralangsamen Sessel. Das würde die
Piste 1 besser für Wiederholungsfahrten ereichbar machen.
Käme man nicht. Zeigt wieder mal, dass du das alles nicht kennst. Aber gut, du fährst ja nur mit dem Cursor Ski. Über die 55 erreichst du Furgg und sonst nix.j-d-s hat geschrieben: 31.05.2024 - 12:03 ....................................
Auch Furgg-unterhalb Furggsattel ist eine tolle Neuerung, vor allem wenn man die Piste 55 mal wieder in Betrieb nehmen würde, sodass man von der KSB Hirli direkt dorthin käme.
Was da eingezeichnet ist, ist schlicht der geplante Gartensessel. Die Bergstation ist auch nicht "unterhalb Furggsattel", sondern der Bereich an dem der weggerissene Gartentellerlift endete. Von da konnte man zum "Sandigen Boden wechseln"
-
NeusserGletscher
- Jungfrau (4161m)
- Beiträge: 4314
- Registriert: 01.04.2010 - 16:45
- Skitage 25/26: 0
- Ski: ja
- Snowboard: nein
- Hat sich bedankt: 715 Mal
- Danksagung erhalten: 1425 Mal
Re: Neues in Zermatt/​Breuil-Cervinia/​Valtournenche – Matterhorn
Ich hätte gerne noch einen Pfeil von MEX Talstation nach Cime Bianche. Erstens braucht der Herrenknecht auch was zum bohren und zweitens wäre ein Tunnel als direkte Verbindung ganz sinnvoll, um schneller ins Skigebiet Monterosa zu kommen. Und wenn schon dort eine TBM steht, kann die auch gleich noch ein Loch nach Saas Fee bohren. Nachdem die unterirdische Dorfbahn nach dem Vorbild von Serfaus gebaut wurde, versteht sich
Was Du selber richtig machst können andere nicht falsch machen
- Cervin
- Vogelsberg (520m)
- Beiträge: 541
- Registriert: 24.08.2017 - 13:04
- Skitage 25/26: 0
- Ski: ja
- Snowboard: nein
- Ort: Zermatt
- Hat sich bedankt: 224 Mal
- Danksagung erhalten: 458 Mal
- Kontaktdaten:
Re: Neues in Zermatt/​Breuil-Cervinia/​Valtournenche – Matterhorn
Er meint dass man eben die 55 wieder nutzen kann, aktuell kann man diese nicht. Aus verschiedenen Gründen.Fab hat geschrieben: 31.05.2024 - 12:53Käme man nicht. Zeigt wieder mal, dass du das alles nicht kennst. Aber gut, du fährst ja nur mit dem Cursor Ski. Über die 55 erreichst du Furgg und sonst nix.j-d-s hat geschrieben: 31.05.2024 - 12:03 Auch Furgg-unterhalb Furggsattel ist eine tolle Neuerung, vor allem wenn man die Piste 55 mal wieder in Betrieb nehmen würde, sodass man von der KSB Hirli direkt dorthin käme.
Was da eingezeichnet ist, ist schlicht der geplante Gartensessel. Die Bergstation ist auch nicht "unterhalb Furggsattel", sondern der Bereich an dem der weggerissene Gartentellerlift endete. Von da konnte man zum "Sandigen Boden wechseln"
Mit dem Garten Sessel würde man wieder auf TS kommen. Sonst würde der Lift ja kein Sinn machen.
the zermatt boy
https://www.instagram.com/nilsgygax/
https://www.instagram.com/nilsgygax/
-
Ahornbühl
- Massada (5m)
- Beiträge: 60
- Registriert: 13.01.2017 - 13:37
- Skitage 25/26: 0
- Ski: ja
- Snowboard: nein
- Hat sich bedankt: 33 Mal
- Danksagung erhalten: 1 Mal
Re: Neues in Zermatt/​Breuil-Cervinia/​Valtournenche – Matterhorn
Welche Gründe sind das eigentlich? Ernst gemeinte Frage… war 2017 das letzte mal dort. Dass man von Bergstation Hörnli/Hirli keinen Skilift „Garten“ braucht war doch schon immer so? Sonst wäre das ja seit dem Rückbau des Garten-Schleppers nicht mehr möglich gewesen.
Er meint dass man eben die 55 wieder nutzen kann, aktuell kann man diese nicht. Aus verschiedenen Gründen.
Mit dem Garten Sessel würde man wieder auf TS kommen. Sonst würde der Lift ja kein Sinn machen.
- Fab
- Disteghil Sar (7885m)
- Beiträge: 7947
- Registriert: 28.07.2007 - 13:11
- Skitage 25/26: 0
- Ski: ja
- Snowboard: nein
- Ort: Tauperlitz (Bayern)
- Hat sich bedankt: 34 Mal
- Danksagung erhalten: 687 Mal
Re: Neues in Zermatt/​Breuil-Cervinia/​Valtournenche – Matterhorn
Davon geh ich nicht aus.Cervin hat geschrieben: 31.05.2024 - 17:24 ....................................................
Mit dem Garten Sessel würde man wieder auf TS kommen. Sonst würde der Lift ja kein Sinn machen.
Die Bergstation des Gartensessels war immer wie von mir oben beschrieben geplant.
Der TS ist ja mit dem MEX von Furgg aus erreichbar.
Die Erhöhung rechts der Fotogtafierposition ist der ungefähre Standpunkt der Bergstation.
Die Raupenspur vorne links weist Richtung Piste "Sandiger Boden" und dem Abzweig in den "Garten"
- Cervin
- Vogelsberg (520m)
- Beiträge: 541
- Registriert: 24.08.2017 - 13:04
- Skitage 25/26: 0
- Ski: ja
- Snowboard: nein
- Ort: Zermatt
- Hat sich bedankt: 224 Mal
- Danksagung erhalten: 458 Mal
- Kontaktdaten:
Re: Neues in Zermatt/​Breuil-Cervinia/​Valtournenche – Matterhorn
es gibt noch gar keine konkrete Pläne über den Standort der Bergstation. Jedoch wird sie viel höher kommen als da.
the zermatt boy
https://www.instagram.com/nilsgygax/
https://www.instagram.com/nilsgygax/
- Seilbahnfan 05
- Großer Müggelberg (115m)
- Beiträge: 418
- Registriert: 18.09.2022 - 22:15
- Skitage 25/26: 7
- Ski: ja
- Snowboard: nein
- Hat sich bedankt: 634 Mal
- Danksagung erhalten: 465 Mal
Re: Neues in Zermatt/​Breuil-Cervinia/​Valtournenche – Matterhorn
Mit was für einer Trassierung, willst du es möglich machen Trockener-Steg zu erreichen? Selbst wenn man die Station so hoch wie möglich platziert, liegt immer noch ein Felsband und der Theodulsee im Weg. Man müsste die Bergstation auf dem Gletscher/ Furggsattel bauen oder unterhalb des Trockenen Stegs ein zusätzlichen Lift bauen, um Trockener-Steg erreichen zu können.
Es ist auch nicht nötig, weil es immer noch den MEX gibt der eigentlich mit den Personenströmen schon jetzt gut umgehen konnte.
Es ist auch nicht nötig, weil es immer noch den MEX gibt der eigentlich mit den Personenströmen schon jetzt gut umgehen konnte.
- Snow Wally
- Wurmberg (971m)
- Beiträge: 1081
- Registriert: 24.09.2014 - 22:13
- Skitage 25/26: 0
- Ski: ja
- Snowboard: ja
- Hat sich bedankt: 1884 Mal
- Danksagung erhalten: 551 Mal
Re: Neues in Zermatt/​Breuil-Cervinia/​Valtournenche – Matterhorn
Romand hat geschrieben: 23.09.2023 - 08:15Ich weiss es auch nicht.Snow Wally hat geschrieben: 23.09.2023 - 00:14Siehe in Pistenplan von 2009/10 unten.... das Projekt aus 2011.Nocki hat geschrieben: 22.09.2023 - 23:10 Sorry, bin, wie man an der Frage merkt, ortsunkundig- aber wo ist Garten???![]()
@Romand: heisst das, es soll vom Garten noch eine 2. Sektion der KSB über den Gletscher zum Furggsattel ganz hoch gehen und es ist 100% bestätigt? Das wäre natürlich richtig cool und praktisch!
Ich hatte mir immer insgeheim erhofft, die KSB Garten würde einfach mindesten so weit verlängert werden (also etwas links vom V auf dem Plan), dass man zum Trockenen Steg kommt, ohne die MEX Gondel ab Furgg zu nehmen... aber so ist das noch besser~![]()
Vielleicht weiss es jemand. Oder es kommt im Plan 23/24
Hier einige Gedanken.
a) Talstation. Platz unter dem Matterhorn express gibt es von links aus glaube Ich nicht (Projekt 2011) oder die Kreuzung ist viel höher. Es müsste meiner Meinung rechts sein.
b) Bergstation
3) Früher war immer Projekt Garten ersatz gesprochen. Sicher die entfachte Lösung. Aber jetzt hört man bis Furggsattel ?
1) Auf dem Furggsattel wäre sicher Top.Aber gibt es Platz? Und braucht es Pfosten in den Gletscher, geht es sicher nicht.
2) Die alte Ankunft vom Theodulexpress, auf dem Felsen, wo man auch zum Trockener Steg kommt.
4) Links vom V ist sicher eine Option, aber es ist auf dem “noch” Gletscher.
Oder irgendwo zwischen 3 und 4.
Es muss definitive eine Lösung sein, “ohne” Gletscher und wo man mit den Skis zum Trockener Steg kommt.
Wir hatten das ja schon mal im Sept. 2023 diskutiert, siehe Bild von Romand oben.
Aus Sicht Skifahrer wäre halt eine 2. Verbindung mit Sessel ohne Ski abziehen zum TS schon nett, also Mittelstation im Garten etwas gemäss Fab, d.h. Nr. 3 im Bild Romand und Bergstation nach 2. Sektion auf dem Gletscher dann direkt neben dem Felsen bei der Ex-Theodulexpress Bergstation (bei Nr. 2) das wäre perfekter Komfort für die Gäste mit allen Optionen.
Oh, und der Anschluss von Garten an die Piste Hirli 55 sieht wohl im Pistenplan machbar aus, aber in Realität wegen dem Gegengefälle wohl kaum realisierbar, leider.
Zuletzt geändert von Snow Wally am 01.06.2024 - 15:45, insgesamt 1-mal geändert.
- Fab
- Disteghil Sar (7885m)
- Beiträge: 7947
- Registriert: 28.07.2007 - 13:11
- Skitage 25/26: 0
- Ski: ja
- Snowboard: nein
- Ort: Tauperlitz (Bayern)
- Hat sich bedankt: 34 Mal
- Danksagung erhalten: 687 Mal
Re: Neues in Zermatt/​Breuil-Cervinia/​Valtournenche – Matterhorn
Doch, gibt es. Meines Wissens wurden auch die geologischen Untersuchungen schon gemacht.Cervin hat geschrieben: 01.06.2024 - 08:28 es gibt noch gar keine konkrete Pläne über den Standort der Bergstation. Jedoch wird sie viel höher kommen als da.
Zusätzlich zu den Argumenten von "Seilbahnfan 05" möcht ich noch anmerken, dass oberhalb des von mir genannnten Ortes einn Felsband kommt, dann ein flaches Geröllfeld und dann beginnnt auch schon der Gletscher.
Weiter höher macht einfach keinen Sinn. Man könnte wieder nur in die Schusspiste einfahren. Erschlossen soll aber, vonn unten gesehen, das Gelände rechts der Gartenpiste unnd auch rechts der MEX-trasse. Auch das Freeridegelände noch weiter rechts.
Also direkt oberhalb der MEX-Mittelstation. Poste dazu 2 Bilder
Zur Veranschaulichung noch ein Bild aus derer Perspektive.
Hier kann man die Schusspiste bis zur Kante sehen an der die Traversenpiste (geschätzt 200m nach links) beginnt die zum ehemaligen "oberen Garten" und auch zum Standpunkt der Bergstation des ehemaligenSchleppers und auch küftigen Gartensessels führt. Heutzutage Teil der Schusspiste.
Erkennbar auf dem Bild die beiden Geländekanten.
Blick vom Furggweg auf den Garten. Wo die Nebelwand die Delle hat, da wird die Bergstation platziert.
Nahaufnahme
- Seilbahnfan 05
- Großer Müggelberg (115m)
- Beiträge: 418
- Registriert: 18.09.2022 - 22:15
- Skitage 25/26: 7
- Ski: ja
- Snowboard: nein
- Hat sich bedankt: 634 Mal
- Danksagung erhalten: 465 Mal
Re: Neues in Zermatt/​Breuil-Cervinia/​Valtournenche – Matterhorn
Stimmt, jetzt kommt mir das ganze wieder in den Sinn. Mit zwei Sektionen ist eine Verbindung zum Trockenen-Steg natürlich machbar. Ehrlicherweise hoffe ich aber nicht darauf. Der Nutzen einer teuren zweiten Sektion ist doch verschwindend gering. Für den schönen Teil des oberen Gartens reicht die erste Sektion, zum Sandigen Boden käme man auch prima. Um weiter aufs Klein-Matterhorn zu fahren, muss man die Ski eh abschnallen. Lediglich die Furrgsattel-Gletscherbahn wäre optimal ans Schwarzsee-Hirli-Furgg Gebiet angeschlossen. Wobei für eine optimale Verbindung halt die 55 auch wiedermal geöffnet werden sollte.
Generell hätte ich bei den Bahnprojekten lieber einige Abstriche, dafür aber leistungsfähigere Beschneiungsanlagen und mehr beschneite Pisten und die 55, 69 und Routen an der Roten Nase zuverlässig geöffnet.
Generell hätte ich bei den Bahnprojekten lieber einige Abstriche, dafür aber leistungsfähigere Beschneiungsanlagen und mehr beschneite Pisten und die 55, 69 und Routen an der Roten Nase zuverlässig geöffnet.
-
tschn
- Massada (5m)
- Beiträge: 61
- Registriert: 23.05.2008 - 08:18
- Skitage 25/26: 0
- Hat sich bedankt: 6 Mal
- Danksagung erhalten: 3 Mal
Re: Neues in Zermatt/​Breuil-Cervinia/​Valtournenche – Matterhorn
Am Ende fehlt dann nur eine Redundanz zwischen Plateau Rose und dem kleinen Matterhon.Cervin hat geschrieben: 29.05.2024 - 10:03 Die "alten" Anlagen bleiben stehen. Neben den angesprochenen Punkten zur Verbindung nach Valtournenche sind diese auch wichtig für die Redundanz der oberen Anlagen.
-
Ahornbühl
- Massada (5m)
- Beiträge: 60
- Registriert: 13.01.2017 - 13:37
- Skitage 25/26: 0
- Ski: ja
- Snowboard: nein
- Hat sich bedankt: 33 Mal
- Danksagung erhalten: 1 Mal
Re: Neues in Zermatt/​Breuil-Cervinia/​Valtournenche – Matterhorn
Die gibt es doch! Abfahrt zum Trockenen Steg, Auffahrt zum Kleinmatterhorn.
-
Onlinej-d-s
- Mt. Blanc (4807m)
- Beiträge: 5065
- Registriert: 01.12.2010 - 13:11
- Skitage 25/26: 0
- Ski: ja
- Snowboard: nein
- Hat sich bedankt: 95 Mal
- Danksagung erhalten: 736 Mal
Re: Neues in Zermatt/​Breuil-Cervinia/​Valtournenche – Matterhorn
Ich bezog mich darauf, dass wenn die 55 mal wieder in Betrieb ginge, man von der KSB-Hirli-Bergstation nach Furgg abfahren könnte.
Und von dort mit einer KSB weiter, bis rauf nach TS (oder eben zwischen TS und Furggsattel) wäre sehr angenehm, weil man dann nicht die Skier abschnallen müsste. Nicht-Skier-abschnallen ist eben schon ein Komfort.
Und nicht nur das, man könnte im Bereich zwischen KSB-Hirli-Talstation und TS den MEX meiden und braucht so das Flachstück nach Furi nicht mehr fahren. Ihr wisst ja, dass ich den MEX für eine schlimme Fehlkonstruktion halte mit seinen 25 Minuten Fahrzeit.
Und von dort mit einer KSB weiter, bis rauf nach TS (oder eben zwischen TS und Furggsattel) wäre sehr angenehm, weil man dann nicht die Skier abschnallen müsste. Nicht-Skier-abschnallen ist eben schon ein Komfort.
Und nicht nur das, man könnte im Bereich zwischen KSB-Hirli-Talstation und TS den MEX meiden und braucht so das Flachstück nach Furi nicht mehr fahren. Ihr wisst ja, dass ich den MEX für eine schlimme Fehlkonstruktion halte mit seinen 25 Minuten Fahrzeit.
-
Bergfan
- Vogelsberg (520m)
- Beiträge: 709
- Registriert: 28.06.2012 - 18:50
- Skitage 25/26: 0
- Ski: nein
- Snowboard: nein
- Hat sich bedankt: 167 Mal
- Danksagung erhalten: 184 Mal
Re: Neues in Zermatt/​Breuil-Cervinia/​Valtournenche – Matterhorn
Ja, da hätte man doch besser eine Autobahn gebaut, mit Parkhaus obenj-d-s hat geschrieben: 02.06.2024 - 11:48 Ihr wisst ja, dass ich den MEX für eine schlimme Fehlkonstruktion halte mit seinen 25 Minuten Fahrzeit.