Sesselliftunfall Astun | 18.01.25
- F. Feser
- Administrator
- Beiträge: 10901
- Registriert: 27.03.2002 - 21:04
- Skitage 25/26: 0
- Ski: ja
- Snowboard: nein
- Ort: Renningen (DE) / Silbertal (AT)
- Hat sich bedankt: 836 Mal
- Danksagung erhalten: 1784 Mal
- Kontaktdaten:
Sesselliftunfall Astun | 18.01.25
Mindestens 30 Verletzte bei Sesselliftunfall. Die Seilscheibe der Bergstation ist aus der Halterung gebrochen, bzw. die Halterung hat versagt, was ein Herabstürzen des Seils zur Folge hatte.
https://www.faz.net/aktuell/gesellschaf ... 40037.html
https://www.faz.net/aktuell/gesellschaf ... 40037.html
-
philippe ch
- Vogelsberg (520m)
- Beiträge: 803
- Registriert: 24.01.2003 - 15:40
- Skitage 25/26: 0
- Ski: nein
- Snowboard: nein
- Ort: neuenkirch
- Hat sich bedankt: 73 Mal
- Danksagung erhalten: 114 Mal
Re: Sesselliftunfall Astun | 18.01.25
Sehr übel.
Scheint ein Sessellift von REAC (Lizenz GMM) zu sein.
https://www.remontees-mecaniques.net/bd ... -4011.html
https://www.blick.ch/ausland/unfall-in- ... 05342.html
Scheint ein Sessellift von REAC (Lizenz GMM) zu sein.
https://www.remontees-mecaniques.net/bd ... -4011.html
https://www.blick.ch/ausland/unfall-in- ... 05342.html
- Werna76
- Jungfrau (4161m)
- Beiträge: 4332
- Registriert: 27.09.2004 - 13:12
- Skitage 25/26: 0
- Ski: ja
- Snowboard: nein
- Ort: Pinzgau & Burgenland
- Hat sich bedankt: 1025 Mal
- Danksagung erhalten: 1039 Mal
Re: Sesselliftunfall Astun | 18.01.25
Hermann ist der Skilehrer für uns alle (Aksel Lund Svindal über Hermann Maier)
- Mt. Cervino
- Chimborazo (6310m)
- Beiträge: 6895
- Registriert: 14.02.2008 - 17:08
- Skitage 25/26: 0
- Ski: ja
- Snowboard: nein
- Hat sich bedankt: 1714 Mal
- Danksagung erhalten: 2321 Mal
Re: Sesselliftunfall Astun | 18.01.25
Das Seil ist ja, wie auf den Bildern zusehen ist, zum Glück am Steher der Seilscheibe hängen geblieben. Dadurch ist das Seil auf der Strecke nur wenige Meter "länger" geworden. Dadurch dürften die Sessel bis auf die in der Nähe der Bergstation und Talstation nicht auf den Boden aufgeschlagen sein. Ggfs. wurde aber durch die Schwingungen am Seil Skifahrer aus den Sesseln geschleudert.
Edit: Auf dem Video aus dem Kronen Artikel sieht man, dass zumindest auch auf der Strecke kurz vor der Bergstation auf einer Seite das Seil von den Robas gerutscht ist. So etwas erzeugt dann heftige Vertikalbeqegungen des Seils bzw. der Sessel.
Das korrespondiert auxch mit der Meldung, dass mind. ein Skifahrer aus ca. 15 m Höhe abgestürzt ist.
Edit: Auf dem Video aus dem Kronen Artikel sieht man, dass zumindest auch auf der Strecke kurz vor der Bergstation auf einer Seite das Seil von den Robas gerutscht ist. So etwas erzeugt dann heftige Vertikalbeqegungen des Seils bzw. der Sessel.
Das korrespondiert auxch mit der Meldung, dass mind. ein Skifahrer aus ca. 15 m Höhe abgestürzt ist.
Zuletzt geändert von Mt. Cervino am 18.01.2025 - 15:31, insgesamt 1-mal geändert.
Last Destinations: Alpe Mondovi (I) / Lurisia (I) / Quattre Vallées-Verbier (CH) / Abetone (I) / Pragelato (I) / Via Lattea-Sestriere (I) / Zermatt-Cervinia-Valtournanche (CH/I) / Pila (I) / Venet (AT) / Hochzeiger (AT) / Hochoetz (AT) / Kühtai (AT) / Pitztaler Gletscher-Rifflsee (AT) / Valtournanche-Cervinia-Zermatt (I/CH) / Obertoggenburg (CH) / St. Moritz (CH) / Arlberg-Lech-Zürs (AT) / Skiwelt (AT) / Cervinia-Zermatt (I/CH) / Serfaus-Fiss-Ladis (AT) / Kleinwalsertal-Ifen-Fellhorn-Söllereck (AT/DE) / Pila (I) / Valtournanche-Cervinia-Zermatt (I/CH) / Bardonecchia (I) / Via Lattea-Sauze D`Oulx-Sestriere (I) / Serre Chevalier (F) / Kleinwalsertal-Ifen (AT) / Tignes-Val d`Isere (F) / Kaunertal (AT) / Gstaad (CH) / Kleinwalsertal-Ifen-Fellhorn (AT/DE) / Isola 2000 (F) / Valberg (F) / Rosiere-Thuile (I/F) / Valtournanche-Cervinia-Zermatt (I/CH) / Portes du Soleil (CH/F) / Vars-Risoul (F) / Serre Chevalier (F) / Carezza (I) / Catinaccio-Vigo di Fassa (I) / Latemar-Obereggen (I)
-
markus
- Gaislachkogl (3058m)
- Beiträge: 3087
- Registriert: 23.09.2002 - 12:35
- Skitage 25/26: 0
- Ski: ja
- Snowboard: nein
- Ort: Winklmoosalm
- Hat sich bedankt: 1363 Mal
- Danksagung erhalten: 1622 Mal
Re: Sesselliftunfall Astun | 18.01.25
Das sieht nach einem kapitalen Lagerschaden aus.
Wundert mich aber schon dass die umlenk keine Absturz Sicherung hat. Aber ich kenne auch die spanischen Vorschriften nicht.
Im Normalfall hört man so etwas auch weit bevor die Scheibe einen Abflug macht.
Wundert mich aber schon dass die umlenk keine Absturz Sicherung hat. Aber ich kenne auch die spanischen Vorschriften nicht.
Im Normalfall hört man so etwas auch weit bevor die Scheibe einen Abflug macht.
- talent
- Fichtelberg (1214,6m)
- Beiträge: 1474
- Registriert: 21.11.2010 - 12:59
- Skitage 25/26: 20
- Ski: ja
- Snowboard: nein
- Hat sich bedankt: 473 Mal
- Danksagung erhalten: 626 Mal
Re: Sesselliftunfall Astun | 18.01.25
Hier gibt es viele Fotos:
https://www.heraldo.es/multimedia/image ... esilla/21/
By the way: Das Skigebiet wurde für den restlichen Tag geschlossen. Aber gleichzeitig zeigen viele Fotos, dass trotz laufendem Großeinsatz jemand Zeit hatte, die Schneekanonen einzuschalten...
https://www.heraldo.es/multimedia/image ... esilla/21/
By the way: Das Skigebiet wurde für den restlichen Tag geschlossen. Aber gleichzeitig zeigen viele Fotos, dass trotz laufendem Großeinsatz jemand Zeit hatte, die Schneekanonen einzuschalten...
Saison 25/26: Crévacol, Riserva Bianca, Mondolè Ski, Courmayeur, Monterosa Ski, Espace San Bernard, Treffelhausen, Saalbach-Hinterglemm-Leogang-Fieberbrunn, Scuol, Lauchernalp, Arolla, Nax
Saison 24/25: Ischgl-Samnaun, Sonnenkopf, Hochlitten, Hochoetz, Kühtai, Kitzbühel, Arosa-Lenzerheide, Vals Dachberg, Adelboden-Lenk, Tschentenalp, Elsigenalp, Lenk-Betelberg, Elsigen-Metsch, St. Moritz Corviglia, Corvatsch
Saison 23/24: Ski Dubai, Serfaus-Fiss-Ladis, Ski Arlberg, Grasgehren, Ifen & Walmendinger Horn - Heuberg, Lermoos & Wettersteinbahnen, Crans-Montana, Grimentz-Zinal, St. Luc & Chandolin, Vercorin
Saison 22/23: Ladurns, Kronplatz, Gitschberg-Jochtal, Grimentz-Zinal, St. Luc & Chandolin, Malbun, Kühtai, Ratschings, Stubaier Gletscher, St. Moritz Corviglia
Saison 24/25: Ischgl-Samnaun, Sonnenkopf, Hochlitten, Hochoetz, Kühtai, Kitzbühel, Arosa-Lenzerheide, Vals Dachberg, Adelboden-Lenk, Tschentenalp, Elsigenalp, Lenk-Betelberg, Elsigen-Metsch, St. Moritz Corviglia, Corvatsch
Saison 23/24: Ski Dubai, Serfaus-Fiss-Ladis, Ski Arlberg, Grasgehren, Ifen & Walmendinger Horn - Heuberg, Lermoos & Wettersteinbahnen, Crans-Montana, Grimentz-Zinal, St. Luc & Chandolin, Vercorin
Saison 22/23: Ladurns, Kronplatz, Gitschberg-Jochtal, Grimentz-Zinal, St. Luc & Chandolin, Malbun, Kühtai, Ratschings, Stubaier Gletscher, St. Moritz Corviglia
↓ Mehr anzeigen... ↓
- Oscar
- Moderator a.D.
- Beiträge: 5402
- Registriert: 02.07.2003 - 17:30
- Skitage 25/26: 0
- Ski: ja
- Snowboard: nein
- Hat sich bedankt: 480 Mal
- Danksagung erhalten: 527 Mal
Re: Sesselliftunfall Astun | 18.01.25
wundert mich jetzt auch etwas. Station sieht eh etwas sehr spartanisch ausmarkus hat geschrieben: 18.01.2025 - 15:27 Das sieht nach einem kapitalen Lagerschaden aus.
Wundert mich aber schon dass die umlenk keine Absturz Sicherung hat. Aber ich kenne auch die spanischen Vorschriften nicht.
Im Normalfall hört man so etwas auch weit bevor die Scheibe einen Abflug macht.
- Schmiddi
- Großer Müggelberg (115m)
- Beiträge: 178
- Registriert: 03.01.2021 - 13:57
- Skitage 25/26: 3
- Ski: ja
- Snowboard: nein
- Ort: Oberallgäu
- Hat sich bedankt: 47 Mal
- Danksagung erhalten: 85 Mal
Re: Sesselliftunfall Astun | 18.01.25
Augenscheinlich hat die Anlage auch keine Seilscheibenlageüberwachung, die ja eigentlich bei einem minimalen vertikalen Bewegen der Seilscheibe durch einen Lagerschaden o. ä. die Anlage noch rechtzeitig abschalten sollte, bevor das Lager komplett hin ist.
Hat in Deutschland und Österreich sogar jeder Schlepplift mit einseitig aufgehängter Seilscheibe.
Die Sessel schauen eh aus wie eine Kopie von Girak.
Hat in Deutschland und Österreich sogar jeder Schlepplift mit einseitig aufgehängter Seilscheibe.
Die Sessel schauen eh aus wie eine Kopie von Girak.
- ATV
- Mt. Vinson (6100m)
- Beiträge: 6190
- Registriert: 01.02.2009 - 22:12
- Skitage 25/26: 0
- Ski: nein
- Snowboard: nein
- Hat sich bedankt: 26 Mal
- Danksagung erhalten: 1047 Mal
Re: Sesselliftunfall Astun | 18.01.25
Das war auch mein erster Gedanke bei den Schleifspuren oberhalb der Scheibe muss die Scheibe stark geeiert haben.markus hat geschrieben: 18.01.2025 - 15:27 Das sieht nach einem kapitalen Lagerschaden aus.
Wundert mich aber schon dass die umlenk keine Absturz Sicherung hat. Aber ich kenne auch die spanischen Vorschriften nicht.
Im Normalfall hört man so etwas auch weit bevor die Scheibe einen Abflug macht.
https://www.remontees-mecaniques.net/bd ... amont2.jpg
Wenn man sich das Bild anschaut scheint es effektiv keine Absturzsicherung unterhalb der Lagerbolzens zu haben.
https://www.remontees-mecaniques.net/bd ... amont2.jpg
-> meine Fotos könnt ihr weiterhin auf meiner Webseite --> www.stahlseil.ch ansehen.
- Nocki
- Vogelsberg (520m)
- Beiträge: 846
- Registriert: 09.08.2020 - 11:49
- Skitage 25/26: 0
- Ski: ja
- Snowboard: nein
- Hat sich bedankt: 726 Mal
- Danksagung erhalten: 464 Mal
Re: Sesselliftunfall Astun | 18.01.25
@markus wie sieht so eine Absturzsicherung für eine Seilscheibe aus? Ist mir bisher noch nie bewusst aufgefallen...
Viele Grüße vom DM-und Girak-fan
-
markus
- Gaislachkogl (3058m)
- Beiträge: 3087
- Registriert: 23.09.2002 - 12:35
- Skitage 25/26: 0
- Ski: ja
- Snowboard: nein
- Ort: Winklmoosalm
- Hat sich bedankt: 1363 Mal
- Danksagung erhalten: 1622 Mal
Re: Sesselliftunfall Astun | 18.01.25
Die ist normalerweise mit freiem Auge nicht erkennbar weil die im Lagerdeckel integriert ist. Das ist dann eine größere Platte die über die Breite der Scheibennabe geht und wenn sich das Lager setzt, abdreht oder frisst dann setzt sich die Scheibe auf die Lagersicherung bei fliegenden Scheiben.Die sozusagen mit der Achse verbunden. (Vereinfacht ausgedrückt)
So etwas hat inzwischen jeder Schlepplift mit fliegenden Seilscheiben. Das musste bei allen Lifttypen in den 90ern Nachgerüstet werden.
Zusätzlich haben dann Sesselbahnen noch die Scheibenlageüberwachung und die Achsen eine Verdrehüberwachung.
In Deutschland ist die Scheibenlageüberwachung übrigens bei alten Schleppliften auch nicht vorgeschrieben sondern nur empfohlen.
So etwas hat inzwischen jeder Schlepplift mit fliegenden Seilscheiben. Das musste bei allen Lifttypen in den 90ern Nachgerüstet werden.
Zusätzlich haben dann Sesselbahnen noch die Scheibenlageüberwachung und die Achsen eine Verdrehüberwachung.
In Deutschland ist die Scheibenlageüberwachung übrigens bei alten Schleppliften auch nicht vorgeschrieben sondern nur empfohlen.
- Schmiddi
- Großer Müggelberg (115m)
- Beiträge: 178
- Registriert: 03.01.2021 - 13:57
- Skitage 25/26: 3
- Ski: ja
- Snowboard: nein
- Ort: Oberallgäu
- Hat sich bedankt: 47 Mal
- Danksagung erhalten: 85 Mal
Re: Sesselliftunfall Astun | 18.01.25
Danke für den Hinweis mit der Lageüberwachung in Deutschland hatte es dann wohl falsch in Erinnerung. Dann war das Österreich wo es Pflicht ist, zumindest nach dem was man in der Berufsschule lerntmarkus hat geschrieben: 18.01.2025 - 21:36 Die ist normalerweise mit freiem Auge nicht erkennbar weil die im Lagerdeckel integriert ist. Das ist dann eine größere Platte die über die Breite der Scheibennabe geht und wenn sich das Lager setzt, abdreht oder frisst dann setzt sich die Scheibe auf die Lagersicherung bei fliegenden Scheiben.Die sozusagen mit der Achse verbunden. (Vereinfacht ausgedrückt)
So etwas hat inzwischen jeder Schlepplift mit fliegenden Seilscheiben. Das musste bei allen Lifttypen in den 90ern Nachgerüstet werden.
Zusätzlich haben dann Sesselbahnen noch die Scheibenlageüberwachung und die Achsen eine Verdrehüberwachung.
In Deutschland ist die Scheibenlageüberwachung übrigens bei alten Schleppliften auch nicht vorgeschrieben sondern nur empfohlen.
Wäre Interessant was im Spanischen so vorgeschrieben war zu der zeit wo der Lift gebaut wurde (laut Lift World 1989)?
Für Neuanlagen dürfte ja glaub eh die CEN Norm gelten die es ja seit Anfang 2000er gibt
- ATV
- Mt. Vinson (6100m)
- Beiträge: 6190
- Registriert: 01.02.2009 - 22:12
- Skitage 25/26: 0
- Ski: nein
- Snowboard: nein
- Hat sich bedankt: 26 Mal
- Danksagung erhalten: 1047 Mal
Re: Sesselliftunfall Astun | 18.01.25
So sieht das aus. Unter dem Lagerbolzen befindet sich eine Platte welche grösser ist als die Lagerbuchse. Wenn nun das Lager versagt, fällt die Scheibe auf diese Platte und nicht zu Boden.
Zuletzt geändert von ATV am 19.01.2025 - 18:17, insgesamt 1-mal geändert.
-> meine Fotos könnt ihr weiterhin auf meiner Webseite --> www.stahlseil.ch ansehen.
-
Philipp2
- Vogelsberg (520m)
- Beiträge: 632
- Registriert: 03.08.2012 - 14:48
- Skitage 25/26: 0
- Ski: ja
- Snowboard: nein
- Hat sich bedankt: 65 Mal
- Danksagung erhalten: 230 Mal
Re: Sesselliftunfall Astun | 18.01.25
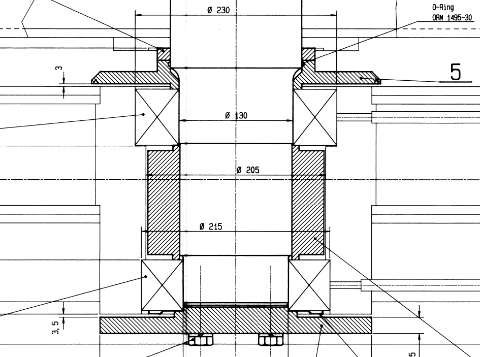
Etwas Ähnliches im Querschnitt inkl. mittiger Notlauflagerung zur Erhaltung der Seilscheibenlage. Die große Hülse soll das Abkippen der Scheibe verhindern. Die Seilscheibe kann hier 3,5 mm fallen, danach muss sie sich bis zum Absturz durch 18,5 mm S355 arbeiten.ATV hat geschrieben: 18.01.2025 - 22:28 So sieht das aus. Unter dem Lagerbolzen bwfindet sich eine Platte welche grösser ist als die Lagerbuchse. Wenn nun das Lager versagt, fällt die Scheibe auf diese Platte und nicht zu Boden.
Für die Richtigkeit der in diesem Beitrag enthaltenen Informationen wird nicht garantiert. Zitieren auf eigene Gefahr.
- Petz
- Mount Everest (8850m)
- Beiträge: 9804
- Registriert: 22.11.2002 - 22:26
- Skitage 25/26: 0
- Ski: nein
- Snowboard: nein
- Ort: Telfs/Austria
- Hat sich bedankt: 921 Mal
- Danksagung erhalten: 456 Mal
- Kontaktdaten:
Re: Sesselliftunfall Astun | 18.01.25
Ich häng mich mal etwas aus dem Fenster und meine Lagerkäfigbruch aufgrund unzureichender Schmierung. Beide Lagerinnenringe stecken noch auf dem Achsstummel aber auf dem mittigen Lagerdistanzring ist überhaupt kein und auf den anderen Teilen kaum (und wenn dann pechschwarzes) Fett zu sehen. Und wie markus schreibt, gerade bei dem als Spitzenresonanzkörper wirkenden Stationssteher hört man einen solchen Schaden deutlich sofern der Liftler oben nicht die Openairdisco veranstaltete...markus hat geschrieben: 18.01.2025 - 15:27Das sieht nach einem kapitalen Lagerschaden aus.
Im Normalfall hört man so etwas auch weit bevor die Scheibe einen Abflug macht.
Petz setzt seine Aktivitäten mit Ende Juni 2020 stark zurück. Ich bleibe aber bis auf weiteres in Ausnahmefällen und per PN für Fragen, Hilfe beim Modellbau etc. noch aktiv.
-
UelivomBerg13
- Massada (5m)
- Beiträge: 42
- Registriert: 04.10.2023 - 14:07
- Skitage 25/26: 14
- Ski: ja
- Snowboard: ja
- Hat sich bedankt: 18 Mal
- Danksagung erhalten: 8 Mal
Re: Sesselliftunfall Astun | 18.01.25
https://www.simagazin.com/si-magazin/th ... e-technik/
Hier noch zum Nachlesen mit Bestätigung des Versagens der Umlenkscheibe.
Hier noch zum Nachlesen mit Bestätigung des Versagens der Umlenkscheibe.
- Mt. Cervino
- Chimborazo (6310m)
- Beiträge: 6895
- Registriert: 14.02.2008 - 17:08
- Skitage 25/26: 0
- Ski: ja
- Snowboard: nein
- Hat sich bedankt: 1714 Mal
- Danksagung erhalten: 2321 Mal
Re: Sesselliftunfall Astun | 18.01.25
Ziemlich lange Abstände bei der "gründlichen" Prüfung. Ist das so üblich oder ein spanische Regelung?Die letzte ‚gründliche‘ Überprüfung des Sessellifts Canal Roya fand laut dem stellvertretenden Direktor des Skigebiets planmäßig im Jahr 2021 statt. Die nächste Überprüfung war für 2026 geplant, so das Medium El Correo. Die Geschäftsführung des Skigebiets versicherte gegenüber dem Portal RTVE, dass die Anlage über alle erforderlichen Genehmigungen verfügt, was auch der Präsident der Regierung von Aragón, Jorge Azcón, bestätigte.
Last Destinations: Alpe Mondovi (I) / Lurisia (I) / Quattre Vallées-Verbier (CH) / Abetone (I) / Pragelato (I) / Via Lattea-Sestriere (I) / Zermatt-Cervinia-Valtournanche (CH/I) / Pila (I) / Venet (AT) / Hochzeiger (AT) / Hochoetz (AT) / Kühtai (AT) / Pitztaler Gletscher-Rifflsee (AT) / Valtournanche-Cervinia-Zermatt (I/CH) / Obertoggenburg (CH) / St. Moritz (CH) / Arlberg-Lech-Zürs (AT) / Skiwelt (AT) / Cervinia-Zermatt (I/CH) / Serfaus-Fiss-Ladis (AT) / Kleinwalsertal-Ifen-Fellhorn-Söllereck (AT/DE) / Pila (I) / Valtournanche-Cervinia-Zermatt (I/CH) / Bardonecchia (I) / Via Lattea-Sauze D`Oulx-Sestriere (I) / Serre Chevalier (F) / Kleinwalsertal-Ifen (AT) / Tignes-Val d`Isere (F) / Kaunertal (AT) / Gstaad (CH) / Kleinwalsertal-Ifen-Fellhorn (AT/DE) / Isola 2000 (F) / Valberg (F) / Rosiere-Thuile (I/F) / Valtournanche-Cervinia-Zermatt (I/CH) / Portes du Soleil (CH/F) / Vars-Risoul (F) / Serre Chevalier (F) / Carezza (I) / Catinaccio-Vigo di Fassa (I) / Latemar-Obereggen (I)
- Hiro
- Moderator
- Beiträge: 350
- Registriert: 03.03.2017 - 21:15
- Skitage 25/26: 0
- Ski: ja
- Snowboard: nein
- Ort: Sölden
- Hat sich bedankt: 51 Mal
- Danksagung erhalten: 85 Mal
Re: Sesselliftunfall Astun | 18.01.25
Wenn er mit gründlicher Überprüfung eine Überprüfung durch den TÜV oÄ meint, ist ein 5-Jahres Abstand nichts ungewöhnliches, auch in Österreich wird eine Seilbahn nur alle 5 Jahre wiederkehrend überprüft(vgl. SeilbÜV). In Deutschland ist das mWn allerdings jährlich erforderlich.Mt. Cervino hat geschrieben: 21.01.2025 - 13:44Ziemlich lange Abstände bei der "gründlichen" Prüfung. Ist das so üblich oder ein spanische Regelung?Die letzte ‚gründliche‘ Überprüfung des Sessellifts Canal Roya fand laut dem stellvertretenden Direktor des Skigebiets planmäßig im Jahr 2021 statt. Die nächste Überprüfung war für 2026 geplant, so das Medium El Correo. Die Geschäftsführung des Skigebiets versicherte gegenüber dem Portal RTVE, dass die Anlage über alle erforderlichen Genehmigungen verfügt, was auch der Präsident der Regierung von Aragón, Jorge Azcón, bestätigte.
Die Hauptuntersuchung (durchgeführt durch den Betreiber) ist allerdings jährlich zu machen, bei der wird aber auch die ganze Seilbahn kontrolliert.
Viele Grüße,
Hiro
Hiro
- Harzwinter
- Wildspitze (3774m)
- Beiträge: 3838
- Registriert: 10.03.2004 - 19:58
- Skitage 25/26: 11
- Ski: ja
- Snowboard: nein
- Ort: Ettlingen
- Hat sich bedankt: 427 Mal
- Danksagung erhalten: 1574 Mal
Re: Sesselliftunfall Astun | 18.01.25
Nun stellt sich die Frage: Wieviele Jahre ohne Wartung / Fettnachschub brauchen die Lager einer Seilscheibe bei (angenommenen) 100 Betriebstagen pro Jahr, bis sie so verschlissen und zerstört sind, dass der Lagerkäfig bricht?
-
markus
- Gaislachkogl (3058m)
- Beiträge: 3087
- Registriert: 23.09.2002 - 12:35
- Skitage 25/26: 0
- Ski: ja
- Snowboard: nein
- Ort: Winklmoosalm
- Hat sich bedankt: 1363 Mal
- Danksagung erhalten: 1622 Mal
Re: Sesselliftunfall Astun | 18.01.25
So was macht man jeden Sommer bei der Revision und bei einer Freistehenden Umlenkung mindestens noch ein mal im Winter. Also ein mal Durchschmieren im Sommer und nachfetten im Winter.
Wann sich aufgrund Fettmangels so ein Lager zerlegt kann man nicht so einfach Beantworten.
Ist das Lager gut abgedichtet, kommt Wasser rein, verliert es Fett etc.
Wann sich aufgrund Fettmangels so ein Lager zerlegt kann man nicht so einfach Beantworten.
Ist das Lager gut abgedichtet, kommt Wasser rein, verliert es Fett etc.